LOGICON.  Engineering Logistics.

Industrial Campus Planning - the right Facilities at the right Place.

Industrial Campus Planning

We go with you through the essential steps of an Industrial Campus Planning, in whole or in part:

  • Data collection, validation and analysis
    • Product and production
    • Parts and part stocks
    • Finished product stocks
    • Inbound and outbound volumes
    • Other relevant information
  • Plant structure
    • Space requirements
    • Building concepts
    • Building arrangements
  • Campus structure (”Greenfield” - how would the plant look like in an ideal world?)
  • Location finding
    • Geographical area
    • Infrastructure
    • Availability of real estate
    • Availability of HR
  • Campus planning (based on the actual chosen site)
    • Buildings
    • Roads
    • Inbound and outbound gates
    • Vehicle and people flows
    • On-campus traffic guidance
  • On request, subsequent facilities planning for logistics operations.

 

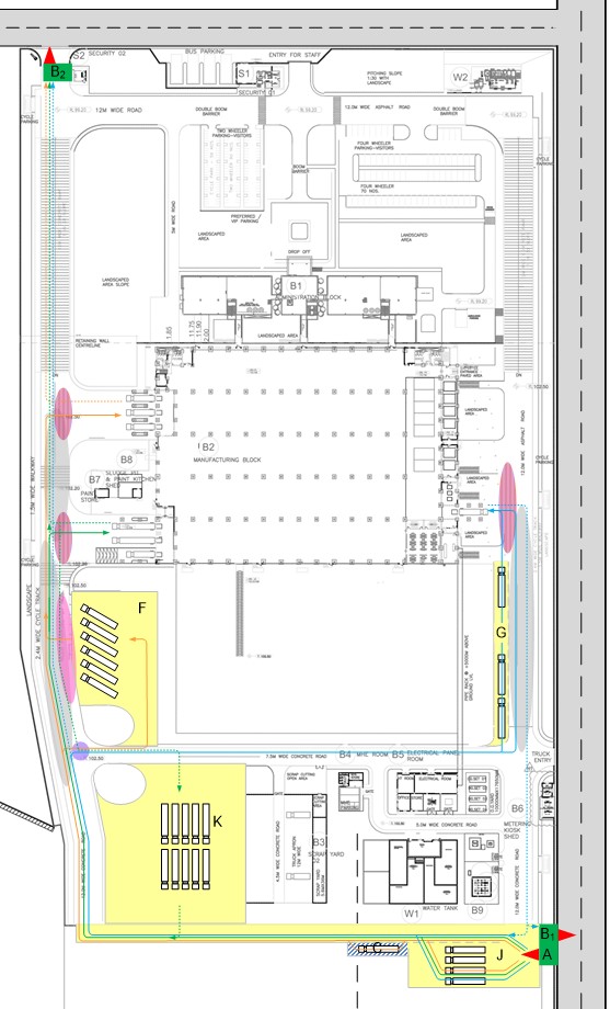
Campus Example 1
Campus Caption